Обзор квартиры в "ЖК Дом по ул Нахимова"
Доступна к покупке 2-комнатная квартира в современном жилом комплексе "ЖК Дом по ул Нахимова" 🏢.
Квартира расположена на 2-м этаже 11-этажного дома.
Прекрасный выбор для комфортной жизни.
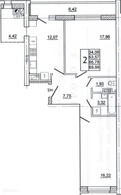
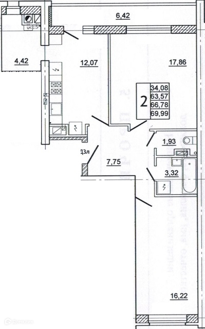
Удобная планировка
- ✅ Общая площадь: 69.4 м².
- ✅ Просторная жилая площадь: 34.08 м².
- ✅ Кухня: 12.07 м² — идеальна для семейных ужинов.
Особенности квартиры
- 🔧 Вариант отделки: без ремонта. Готовая база для вашего интерьера.
- 🌞 Большие окна наполняют помещения естественным светом.
- 🌿 Класс жилья: Комфорт — благоустроенная территория.
Выгодные условия покупки
- 💳 Ипотека от 53 978 руб/мес.
- 🏦 Подходит под семейную и IT ипотеку.
- 🤝 Эскроу-счета гарантирует спокойствие.
Чтобы узнать подробности и проверить актуальную стоимость — свяжитесь с нами прямо сейчас! 📞
Характеристики новостройки в ЖК Дом по ул Нахимова
- Номер квартиры: 5
- Вариант отделки: без ремонта
- Общая площадь: 69.4 м²
- Жилая площадь: 34.08 м²
- Площадь кухни: 12.07 м²
- Класс жилья: Комфорт
- Количество комнат: 2-комнатная квартира
- Этаж: 2
- Этажность дома: 11
Полезная информация о ЖК Дом по ул Нахимова