Обзор квартиры в "ЖК Дом по ул Нахимова"
В продаже 2-комнатная квартира в новом жилом комплексе "ЖК Дом по ул Нахимова" 🏢.
Квартира расположена на 4-м этаже 11-этажного дома.
Прекрасный выбор для комфортной жизни.
Удобная планировка
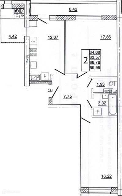
- ✅ Общая площадь: 69.7 м².
- ✅ Светлая жилая площадь: 34.08 м².
- ✅ Кухня: 12.07 м² — идеальна для семейных ужинов.
Особенности квартиры
- 🔧 Вариант отделки: без ремонта. Минимум грязных работ.
- 🌞 Панорамное остекление наполняют помещения природным светом.
- 🌿 Класс жилья: Комфорт — современные технологии.
Финансы и ипотека
- 💳 Ипотека от 54 209 руб/мес.
- 🏦 Подходит под семейную и IT ипотеку.
- 🤝 Безопасная сделка гарантирует надежность.
Чтобы узнать подробности и зафиксировать цену — свяжитесь с нами прямо сейчас! 📞
Характеристики новостройки в ЖК Дом по ул Нахимова
- Номер квартиры: 13
- Вариант отделки: без ремонта
- Общая площадь: 69.7 м²
- Жилая площадь: 34.08 м²
- Площадь кухни: 12.07 м²
- Класс жилья: Комфорт
- Количество комнат: 2-комнатная квартира
- Этаж: 4
- Этажность дома: 11
Полезная информация о ЖК Дом по ул Нахимова