Описание квартиры в "ЖК Дом по ул Нахимова"
Предлагается 2-комнатная квартира в современном жилом комплексе "ЖК Дом по ул Нахимова" 🏢.
Квартира расположена на 5-м этаже 11-этажного дома.
Прекрасный выбор для комфортной жизни.
Удобная планировка
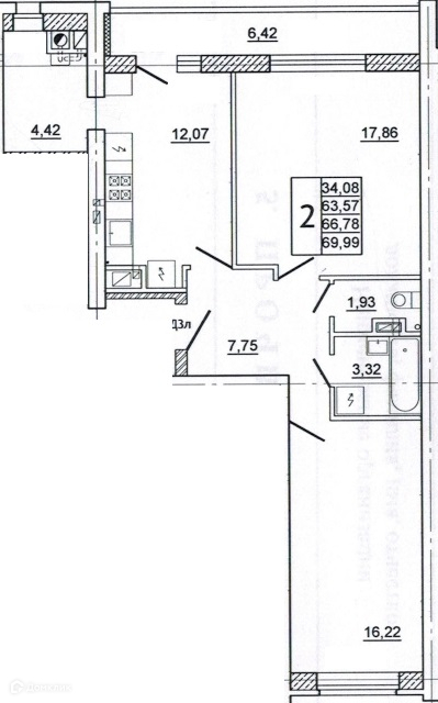
- ✅ Общая площадь: 69.9 м².
- ✅ Уютная жилая площадь: 34.08 м².
- ✅ Кухня: 12.07 м² — место для кулинарных шедевров.
Преимущества квартиры
- 🔧 Вариант отделки: без ремонта. Минимум грязных работ.
- 🌞 Увеличенные оконные проемы наполняют помещения естественным светом.
- 🌿 Класс жилья: Комфорт — современные технологии.
Выгодные условия покупки
- 💳 Ипотека от 54 367 руб/мес.
- 🏦 Подходит под семейную и IT ипотеку.
- 🤝 Покупка напрямую от застройщика гарантирует спокойствие.
Для бесплатного бронирования и проверить актуальную стоимость — свяжитесь с нами прямо сейчас! 📞
Характеристики новостройки в ЖК Дом по ул Нахимова
- Номер квартиры: 17
- Вариант отделки: без ремонта
- Общая площадь: 69.9 м²
- Жилая площадь: 34.08 м²
- Площадь кухни: 12.07 м²
- Класс жилья: Комфорт
- Количество комнат: 2-комнатная квартира
- Этаж: 5
- Этажность дома: 11
Полезная информация о ЖК Дом по ул Нахимова